S'Estància

 

‘S’Estància’ is a constellation of austere farmhouse buildings of simple design, currently under restoration. Built in the early 20th century close to the main finca, it used to be inhabited by the farmers who worked the land.

Celebrating Menorcan traditional architecture, the project establishes a continuous spatial and material narrative across buildings of different periods. A new tower – an homage to the traditional tower structures that have accompanied farmhouse buildings on the island for centuries – lends the ensemble a newly found presence.

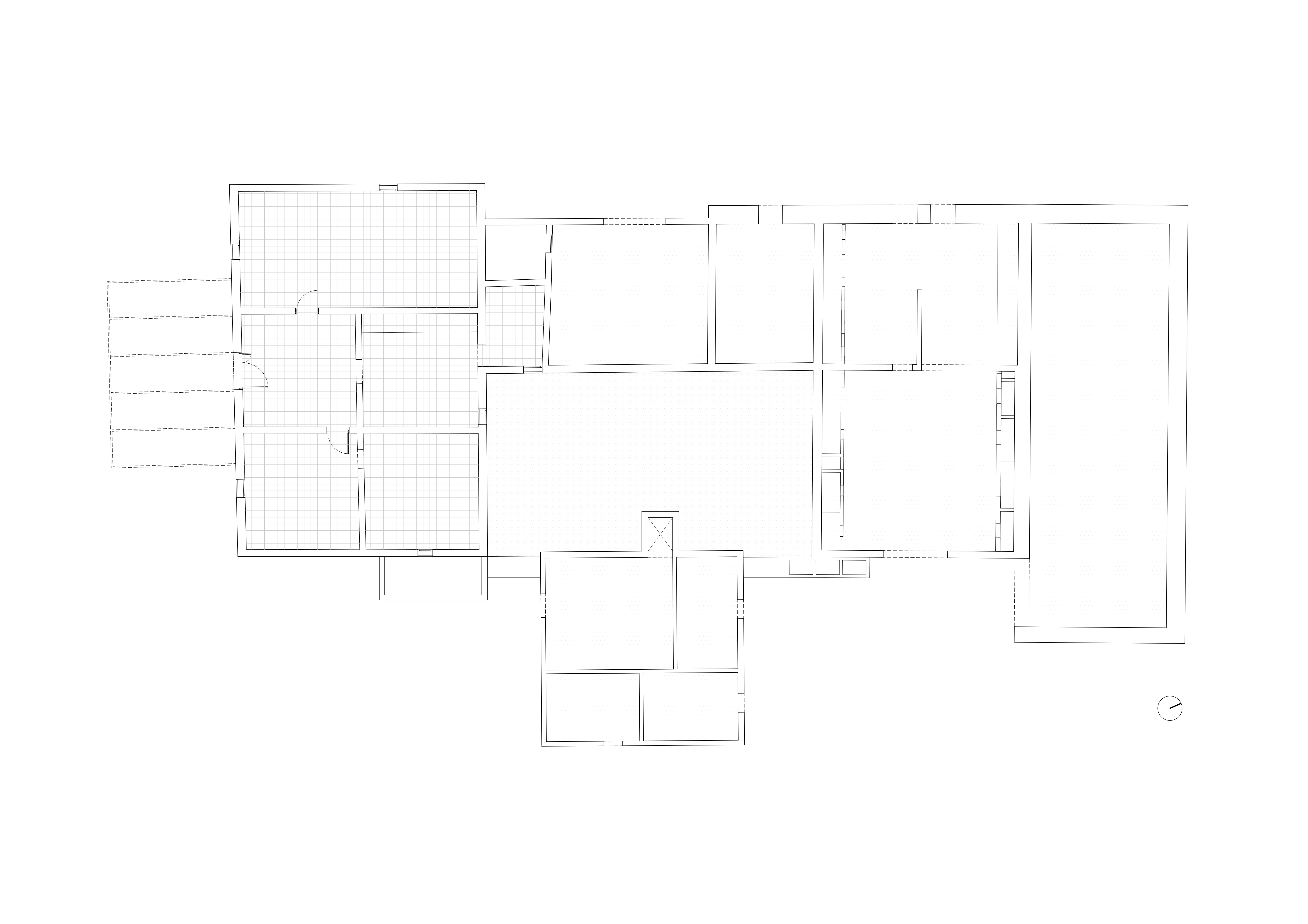
The farmers house was composed of five modular rooms and accompanied by a series of barn structures, some of which had fallen into ruin. A square structure, which was used as farming storage, was added in the 1960s.

With respect for its austere heritage, our restoration project brings all its elements back to life, converting the barn structures into inhabitable spaces. Communal spaces spread across both the original house and the restored barns, with bedrooms located on each end of the ensemble.

A new tower built solely with marès now rises in place of the deteriorated 1960s addition. Offering elevated views above the tree canopy and into the sea, the tower is rooted in the existing cistern and completes the house’s organic growth, lending the architectural ensemble a renewed identity.

Our interior approach adapts to each of the sections. In the original house, the traditional red clay tiles are restored. The barn buildings, where more intervention was needed, embrace the serene hues of their stone walls.

Year
2025
Location
Ciutadella, Menorca
Tipology
Residential
Status
Ongoing
Client
Private
Surface
440 m2
Son mestres estancies - 17
EMPLAÇAMENT WEB
Son mestres estancies - 12
Son mestres estancies - 19

 

 

With respect for its austere heritage, our project for ‘S’Estància’ brings all its elements back to life, restoring and transforming the barn structures as inhabitable spaces. The result is a balanced house featuring six bedrooms located at each end (North and South) of the main circulation axis. This central sequence, which spreads across both the original house and the restored barns, houses the communal spaces.

A new tower built solely with marès now rises in place of the deteriorated 1960s square addition, a homage to the traditional tower structures that have accompanied farmhouse buildings on the island for centuries. Offering elevated views above the tree canopy and into the sea, the tower completes the house’s organic growth around the cistern and gives the architectural ensemble a new presence and identity.

Our interior approach adapts to each of the sections. In the original house, the traditional red clay tiles are restored and the walls are characterised by whitewashed finishing. The barn buildings, where more intervention was needed to restore and adapt the spaces, adopt a serene and contemporary environment inspired by the hues of beige and brown of their ‘marès’ walls and the restored dry stone wall. The result is a continuous spatial and material narrative that bridges different periods, while reinterpreting and celebrating the language of traditional Minorcan architecture.

 

 

DIAGRAMA CASA- ESTABLES
A) 20th-century farmers' house B) 20th-century livestock construction C) 1960s auxiliary construction
DIAGRAMA CIRCULACIONS punts
Main circulation
DIAGRAMA DIA NIT
A) Night zone B) Day zone
EA
Original house
E REFORMAT
Renovated house
IMG_3362
IMG_3386
IMG_0021
IMG_3389